新闻资讯

BOX-3D 槽型钢混叠合梁软件上线

来源:桥友信息科技 | 发布时间:2020-05-28 | 阅读:2376次
    槽型钢混叠合梁研发成功,近期将面向市场推广,各位工程师可以申请适用。

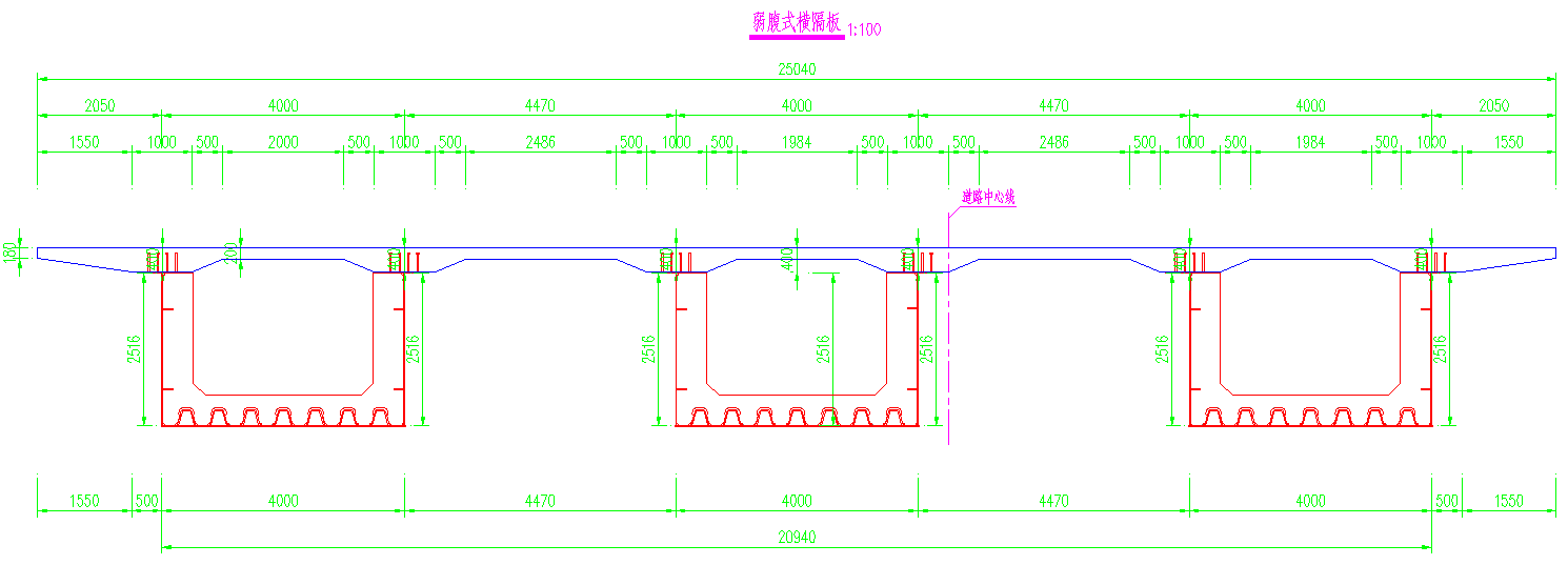
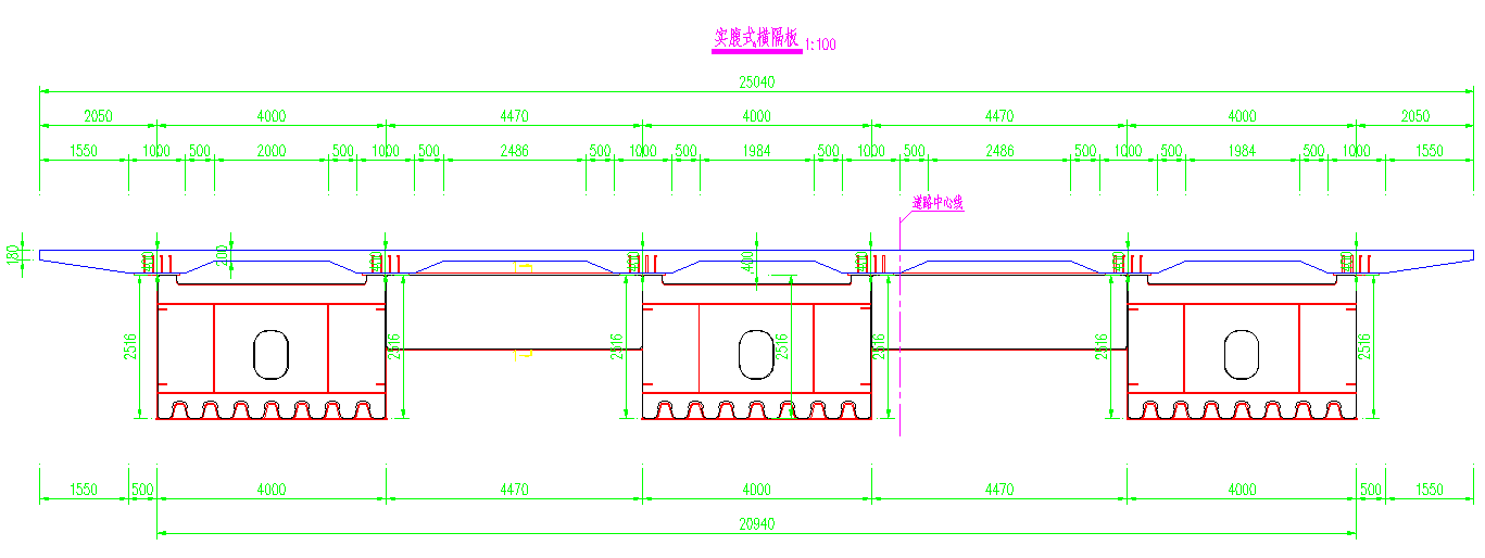
    槽型钢混叠合梁模块支持等高、变高、等宽、变宽、弯桥、斜桥、超高等工况;支持立面图、平面图、横断面图绘制,工程量计算。支持钢结构部分的断面绘制,剖面绘制。混凝土部分的构造平面、断面与钢筋平面与断面图绘制,工程量计算等。下图为软件绘制的几个图例。

    

    立面图

    顶板处剪力钉布置图

    钢混结构断面图


    

    钢结构部分断面图


    混凝土结构部分断面图

    以上是几个简图示意,欢迎广大工程师试用沟通。


在线咨询
Copyright © 2019-2020 www.qiaoyoutec.com 桥友信息科技 版权所有 苏ICP备19027270号 苏公网安备32050502012713号,未经同意,不得转载! 技术支持:叁点零网络
版权所有:苏州桥友信息科技有限公司
 
QQ群咨询
咨询热线
0512-62697703